
Hirsisauna fiksuin tilaratkaisuin
Valitse tästä itsellesi ja perheellesi hyvin suunniteltu ja huolella rakennettu sauna!
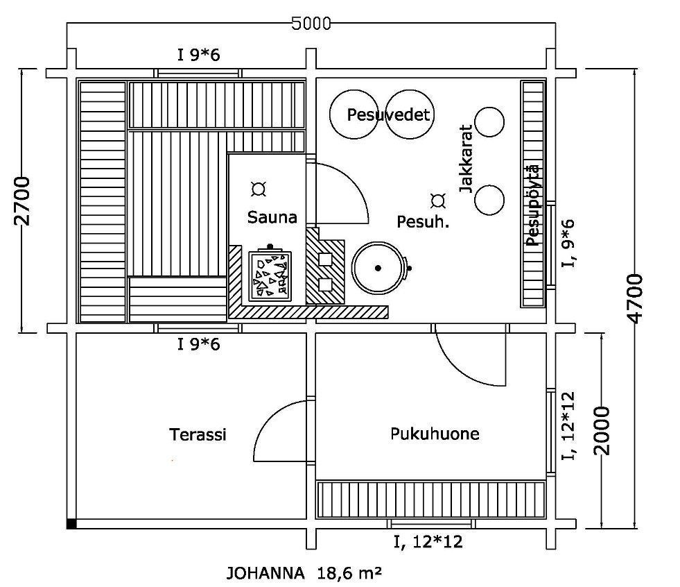
Timpan Kurkihirsi Tmi:n saunassa on otettu huomioon tilanjako, siellä sopii kylpemään ja peseytymään kunnolla. Vaihtoehtoja saunamalleissa löytyy isommallekin porukalle. Hirrestä rakennettu perinteinen saunamökki istuu moneen paikkaan. Isompien saunamökkien pukuhuone toimii kätevänä paikkana vaikkapa yövieraiden majoitukseen.
Kiinnostuitko? Jätä yhteystietosi, otamme yhteyttä!
Kiinnostuitko? Jätä yhteystietosi, otamme yhteyttä!
Kiitos yhteydenotostasi.
Palaamme sinulle mahdollisimman pian.
Hups, viestiäsi lähetettäessä tapahtui virhe.
Yritä myöhemmin uudelleen.















