
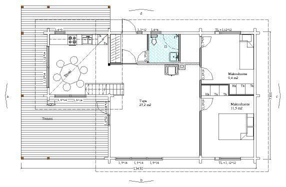
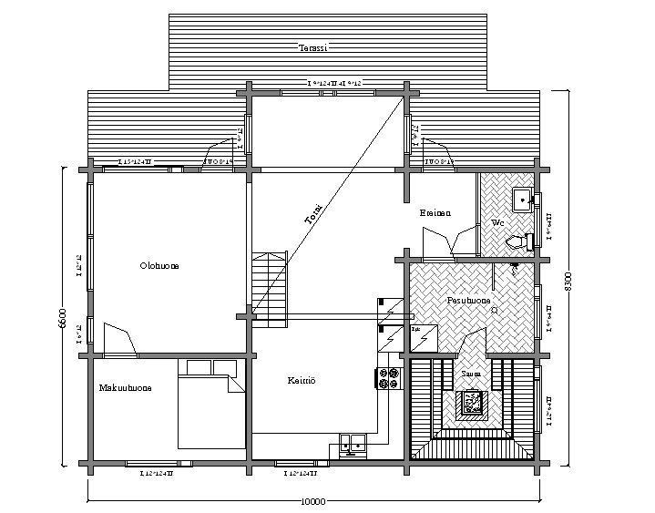
Hirsimökki tyylin ja tilantarpeesi mukaan
Oma kesämökki niemen notkoon, saarelmaan tai tunturin kupeeseen lienee monen suomalaisperheen unelma. Timpan Kurkihirsi rakentaa perinteiset hirsimökit Pohjois-Suomessa. Valittavanasi on mallisto eri tyylisiä ja kokoisia mökkejä. Hyvin suunnitellussa ja kestäväksi rakennetussa hirsimökissä on helppo hengittää ja viettää tunnelmallista ja huoletonta vapaa-aikaa kesät talvet.
Kiinnostuitko? Jätä yhteystietosi, otamme yhteyttä!
Kiinnostuitko? Jätä yhteystietosi, otamme yhteyttä!
Kiitos yhteydenotostasi.
Palaamme sinulle mahdollisimman pian.
Hups, viestiäsi lähetettäessä tapahtui virhe.
Yritä myöhemmin uudelleen.










